Топка 55x55x51 K (Austroflamm)

Производитель: Austroflamm
Объем отапливаемого помещения,м² 105
Мощность, КВт 7
КПД,% 78,9
Диаметр дымохода,мм 180
Вес, кг 105
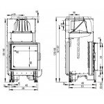
Габариты: В/Ш/Г, мм 1230 / 579 / 579
Форма стекла 2 стекла
Дверца Боковое открывание
Перейти к описанию
564 765
Хочу скидку
Кол-во:  
   - или -   

Каминная топка 55x55x51 K - премиум класса для самых требовательных клиентов

Особенности:

  • Система длительного горения - до 12 часов
  • Система "Чистое стекло"
  • Система полного сгорания за счет высокой температуры внутри топочной камеры
  • Регулировка горения одной ручкой
  • Топка выполнена из высоколегированной стали
    • Система воздуховодных каналов по всему корпусу увеличивает эффективность и скорость прогрева топки
    • Корпус характеризуется высочайшей герметизацией (один из лучших показателей в Европе)
      • При нарушении тяги риск проникновения угарного газа в помещение исключен
  • Боковое открывание дверцы с угловым стекляным фасадом (Г-образная форма)
    • Размер каждого стекла Ш/В 460x398мм
    • Дверца с механизмом самозакрывания и системой самозащелкивания
  • Забор воздуха извне (с улицы)
  • Топочная часть футерована (обклад) уникальным материалом Keramott (баланс между теплоизоляцией и адаптивной теплопроводностью)
    • Keramott - при розжиге топки работает как отражатель, тем самым быстро нагнетается температура в топочной камере (чистое стекло, высокий КПД, дожиг газов)
    • Keramott - при дальнейшем прогреве, материал становится теплопроводным, обеспечивая баланс прогрев корпуса топки с последующей теплоотдачей в помещение и высокой температурой внутри самой топочной камеры
    • Keramott - самоочищающийся материал (сажа выгорает)
  • Подовое горение (отсутствие колосника)
  • Дымосборник из чугуна
    • Выходной патрубок дымовых газов выполнен из чугуна и может поворачиваться на 90°
  • Ножки (Регулировка по высоте)
  • Гарантия - 6 лет

Опции:

  • колосник и зольник
  • дверная ручка черная для бокового открытия
  • ручка регулировки воздуха черная
  • теплонакопитель HMS
  • теплонакопитель кольцо ASM
  • адаптер для колец ASM малый
  • теплонакопитель бокс HMS в дымоход
  • конвекционный кожух
 
Производитель: Austroflamm
Объем отапливаемого помещения,м² 105
Мощность, КВт 7
КПД,% 78,9
Диаметр дымохода,мм 180
Вес, кг 105
Габариты: В/Ш/Г, мм 1230 / 579 / 579
Форма стекла 2 стекла
Дверца Боковое открывание
Материал Сталь
Вид топлива Дрова
---- Отзывы пока отсутствуют. Вы можете стать первым.
0 / 0
5 звезд
0
4 звезды
0
3 звезды
0
2 звезды
0
1 звезда
0

VESTAKAMIN - ОГОНЬ, ЗАКАЛЕННЫЙ ТРАДИЦИЯМИ
 
-->